Если цена в объявлении изменится, мы сразу сообщим вам об этом на электронную почту.
Нажимая «Подписаться», вы соглашаетесь с правилами.
продам 1-к, Чайковского, 204 450 000 ₽
1 авг 2025
Дата публикации объявления
Обн. 26 сен
Дата обновления объявления
17
(+1)
Количество просмотров (+ просмотры за сегодня)
152 921 ₽/м²
Чистая продажа
Термин "Чистая продажа" означает, что в квартире никто не прописан или
есть куда выписаться и вывезти вещи. Это лучший вариант для покупателя.
Вероятность срыва сделки минимальна.
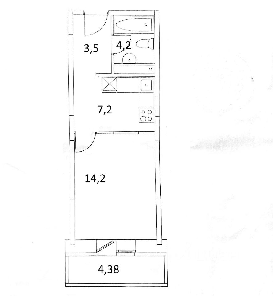
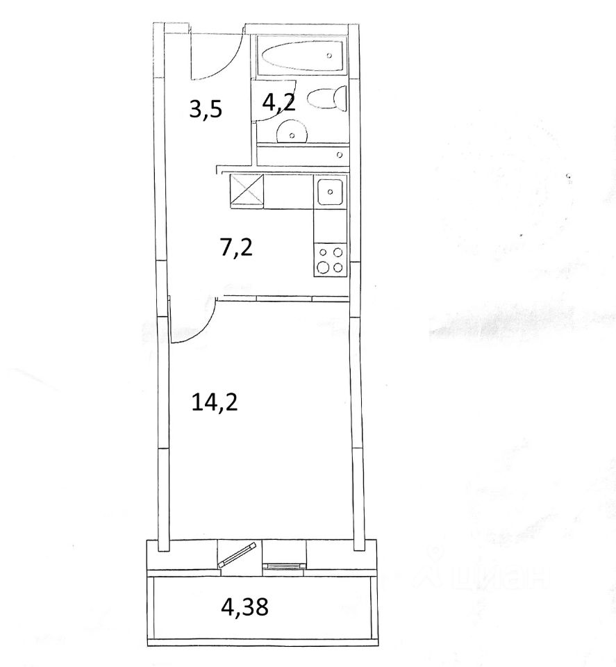
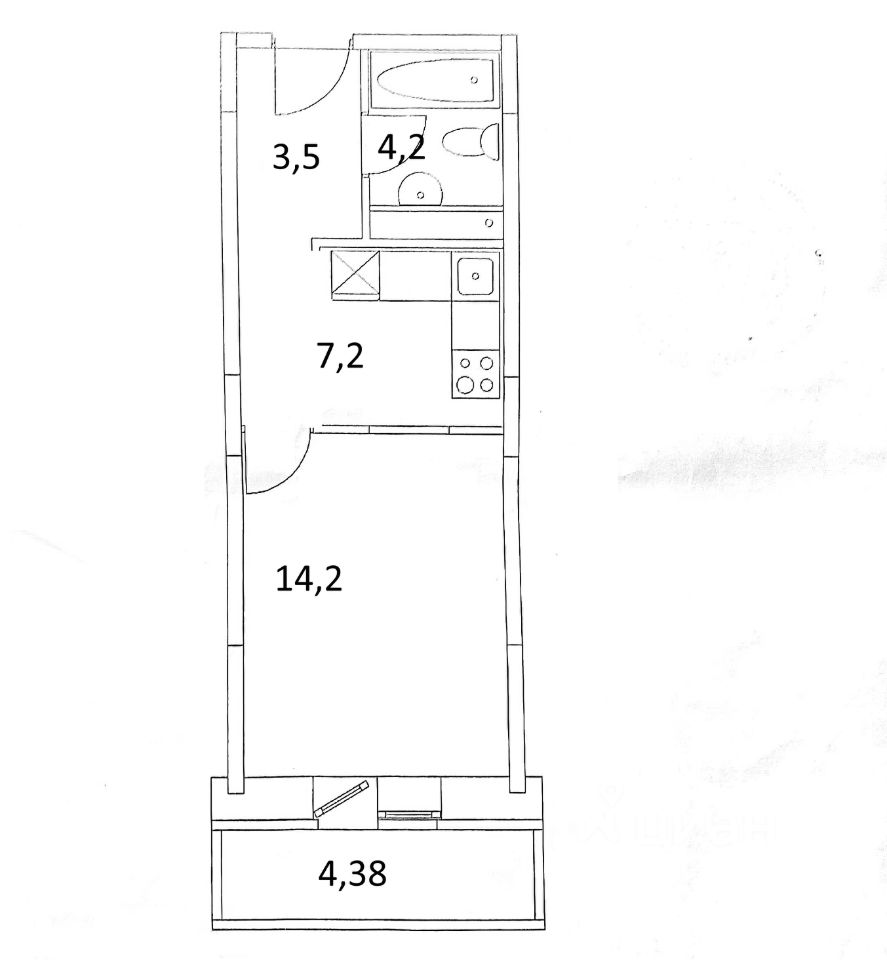
Продается студия 29,1 м² в Сергиевом Посаде, ул. Чайковского, д. 20
Студия на 2 этаже 17-этажного монолитно-кирпичного дома. Общая площадь — 29,1 м², кухня — 7,2 м², жилая — 14,2 м². Высота потолков — 2,7 метра. Окна выходят во двор.
Сделан предчистовой ремонт — экономия на черновых работах: Ламинат на полу, потолок ровный и окрашен Стены готовы под покраску или оклейку обоями Кухня — подготовка под плитку Проведена электрика, установлены розетки и выключатели В ванной — разводка труб, стены выровнены под плитку, установлен унитаз Лоджия остеклена двойными стеклопакетами, можно утеплить
Дом оборудован пассажирским и грузовым лифтами.
Продается студия 29,1 м² в Сергиевом Посаде, ул. Чайковского, д. 20
Студия на 2 этаже 17-этажного монолитно-кирпичного дома. Общая площадь — 29,1 м², кухня — 7,2 м², жилая — 14,2 м². Высота потолков — 2,7 метра. Окна выходят во двор.
Сделан предчистовой ремонт — экономия на черновых работах: Ламинат на полу, потолок ровный и окрашен Стены готовы под покраску или оклейку обоями Кухня — подготовка под плитку Проведена электрика, установлены розетки и выключатели В ванной — разводка труб, стены выровнены под плитку, установлен унитаз Лоджия остеклена двойными стеклопакетами, можно утеплить
Дом оборудован пассажирским и грузовым лифтами. В пешей доступности — магазины, школы, садики, поликлиники. Удобное сообщение — до центра города 10 минут.
Квартира без обременений, прямая продажа, ипотека подходит. Подходит для личного проживания или для аренды.
Звоните! Покажем в удобное время, всё расскажем на месте.